2013 | Kleeff

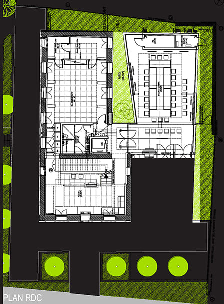
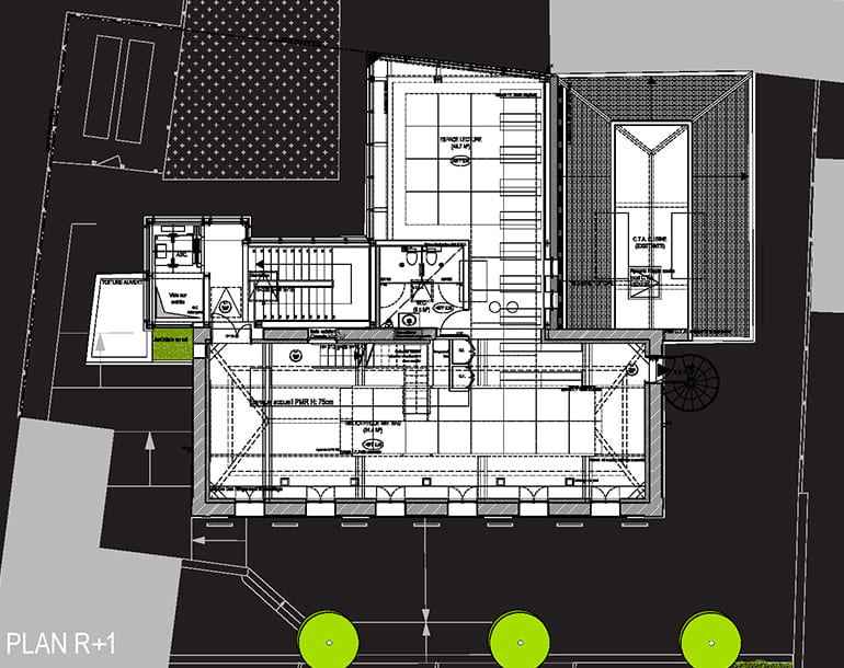
Mairie, bibliothèque, et halle de marché, Saint Jouin-Bruneval (76).

‘’Haute couture pour centre-bourg…’’

Dans le cadre d’un projet très cohérent de redynamisation du centre-bourg, piloté par Paul Chemetoff, la municipalité à souhaité que la redistribution et la création des équipements publics soient confiés à la même équipe de maitrise d’œuvre. Cette cohérence recherchée n’excluait pas, selon nous, la diversité et la personnalisation de chacun des équipements. Ainsi, la mairie logée dans une ancienne maison bourgeoise voit ses volumes d’origine, réhabilités, surélevés et étendus pour respectivement recevoir les bureaux des élus, les services administratifs associés et la salle du Conseil municipal. L’ancienne ‘’école des garçons’’ reçoit en partie haute la bibliothèque, en partie basse la salle multi-activités, ainsi qu’une extension de la cuisine scolaire… Un nouveau volume vitré arrière permet de donner cohérence et logique à cet ensemble disparate de fonctions. La halle de marché enfin, simple et discrète, organise la place éponyme.

Phase

MOA

MOE

Coût

Surface

Mission
Ville de Saint Jouin-Bruneval

Jean Baubion architecte(s)

1.7 M€ H.T

870 m² SHON

Mission de base + O.P.C

Découvrir nos projets

2025 | Boonn III

2025 | Boonn III

Six logements sociaux et centre médical, Saint Jouin Bruneval (76)

2024 | Boonn II

2024 | Boonn II

31 logements sociaux et accession, Saint Jouin -Bruneval (76)

2020 | Monkks II

2020 | Monkks II

101 logements accession, Petit Quevilly et Rouen (76).

2020 | Kleeff IV

2020 | Kleeff IV

Requalification des aménagements sportifs aux alentours du château du Clos des fées, Saint Jouin - Bruneval (76).

2019 | Sainte-Croix

2019 | Sainte-Croix

Hotel de charme 5*, 22 chambres, Rouen (76).

2019 | Saint-Niçaise L

2019 | Saint-Niçaise L

32 logements accession + Espace public de proximité, Rouen (76)