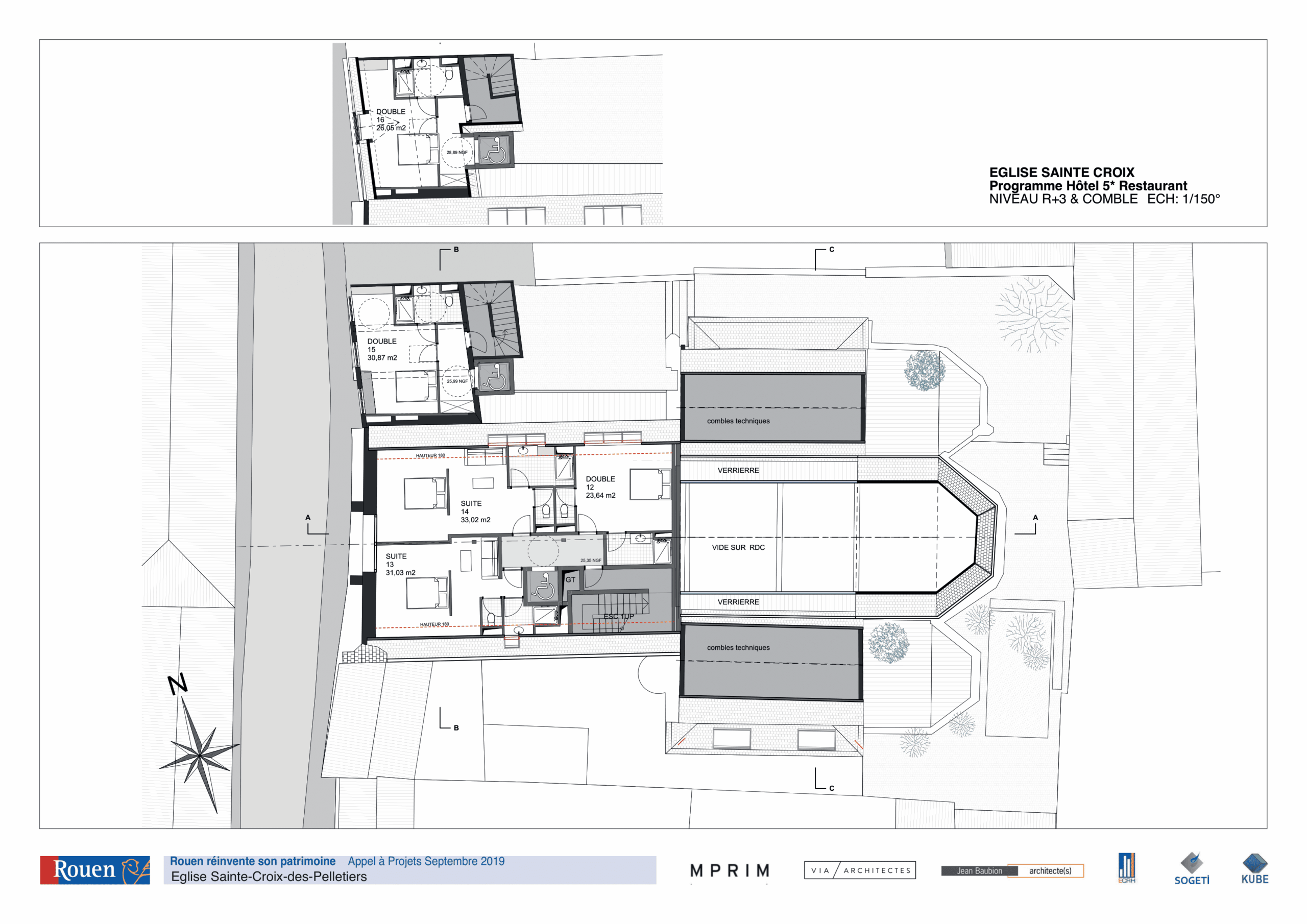
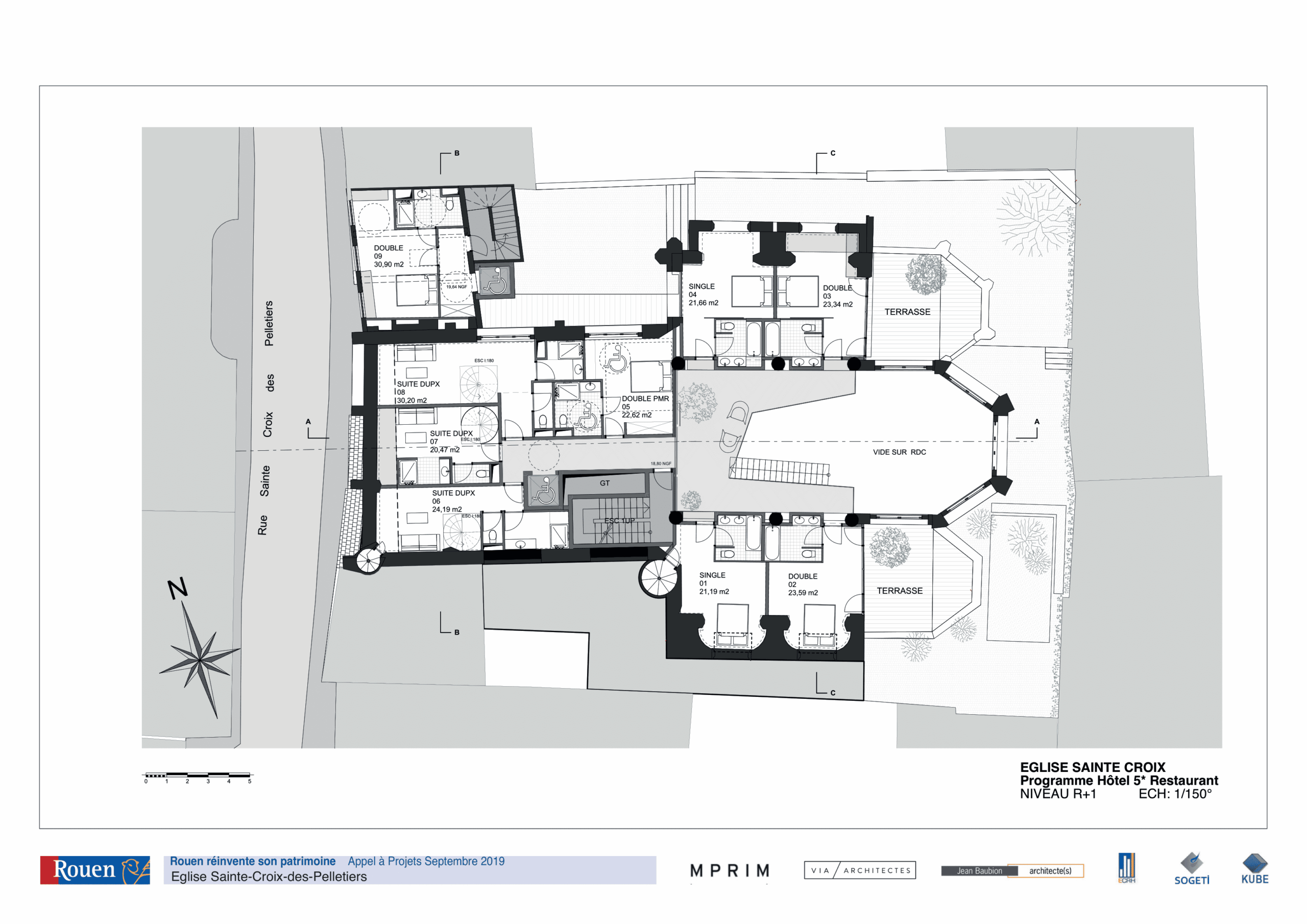
2019 | Sainte-Croix
Hotel de charme 5*, 22 chambres, Rouen (76).
‘’ Vers un hôtel de proximité’’
Au cœur du vieux Rouen, dans une ancienne et magnifique église classée, notre projet vise à la désenclaver sur tous les plans : Par une sauvegarde poussée de ce patrimoine rouennais existant, par l’arrivée d’une activité économique hotellière pérenne et par un projet architectural ‘’à l’échelle’’.
Phase
MOA
MOE
Coût
Surface
Mission
MOA
MOE
Coût
Surface
Mission
Appel à projet
M PRIM
Jean Baubion architecte(s)
3.2 M€ H.T
900 m² SHON
Mission de base Quant OPC
M PRIM
Jean Baubion architecte(s)
3.2 M€ H.T
900 m² SHON
Mission de base Quant OPC