2024 | Boonn II

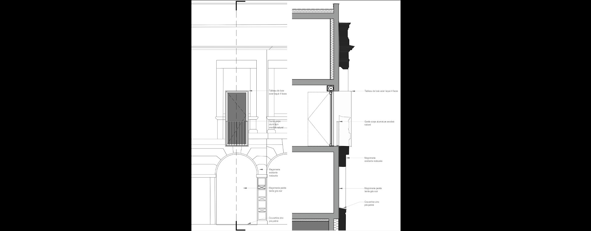
31 logements sociaux et accession, Saint Jouin -Bruneval (76)

" Le projet comme réveil d'un lieu en hibernation... "

Phase

MOA

MOE

Coût

Surface

Mission
Etudes en cours

LOGEO

Jean Baubion architecte(s)

4.6 M€ H.T

2029 m² SHON

Mission de base

Découvrir nos projets

2025 | Boonn III

2025 | Boonn III

Six logements sociaux et centre médical, Saint Jouin Bruneval (76)

2024 | Boonn II

2024 | Boonn II

31 logements sociaux et accession, Saint Jouin -Bruneval (76)

2020 | Monkks II

2020 | Monkks II

101 logements accession, Petit Quevilly et Rouen (76).

2020 | Kleeff IV

2020 | Kleeff IV

Requalification des aménagements sportifs aux alentours du château du Clos des fées, Saint Jouin - Bruneval (76).

2019 | Sainte-Croix

2019 | Sainte-Croix

Hotel de charme 5*, 22 chambres, Rouen (76).

2019 | Saint-Niçaise L

2019 | Saint-Niçaise L

32 logements accession + Espace public de proximité, Rouen (76)