2019 | Saint-Niçaise L
32 logements accession + Espace public de proximité, Rouen (76)
‘’Eglise désacralisée, menacée de péril, au cœur d’un quartier inquiet …’’
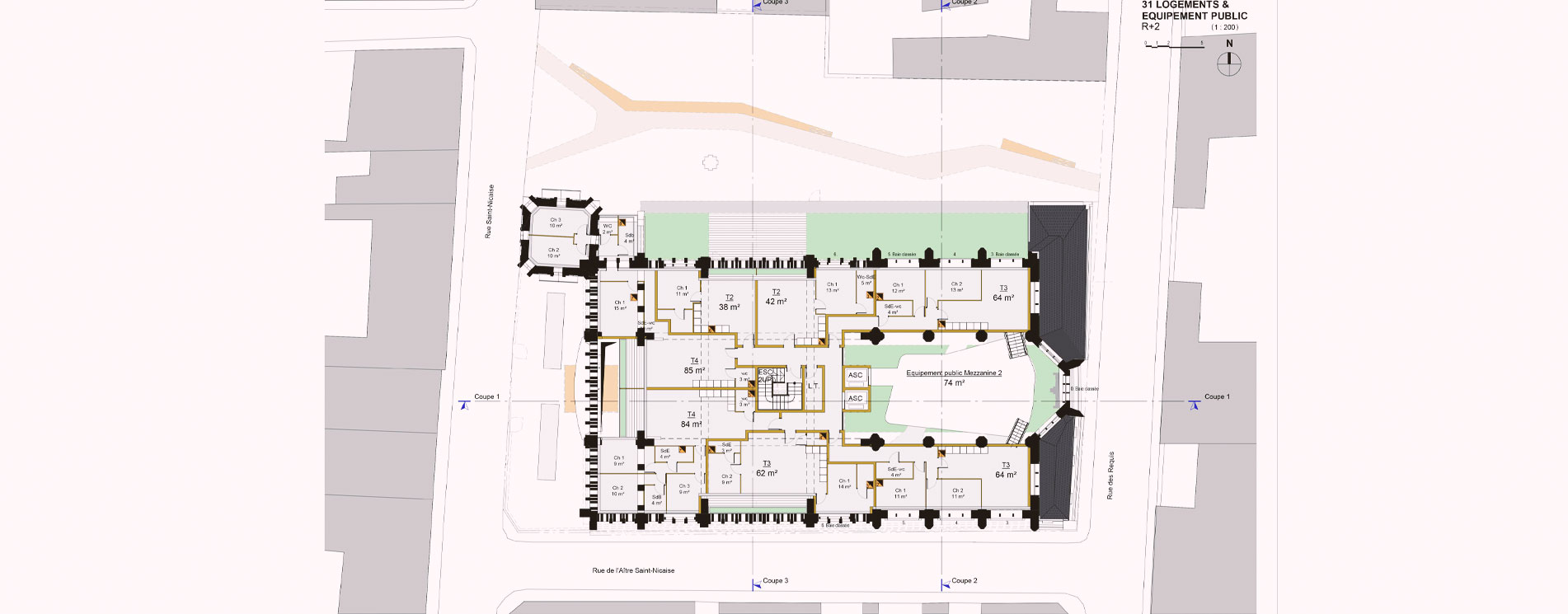
Pourquoi la sauvegarde du patrimoine passerait forcément par des projets creux programmatiquement, sans densité spatialement et financièrement douteux ? Se basant sur un montage de fond économique réaliste, notre projet est exemplaire : Sur le plan patrimonial avec la sauvegarde et la restauration très poussée de cet ensemble classé. Ensuite, sur le plan urbain avec la création d’un espace vert public traversant et d’un équipement public de proximité dans le chœur. Enfin sur le plan de la revalorisation du quartier avec la création de 32 logements dans le volume de la nef et habitant les toitures sur Rouen.
MOA
MOE
Coût
Surface
Mission
M PRIM
Jean Baubion architecte(s)
10.5 M€ H.T
3600 m² SHON
Mission de base + Quant. + O.P.C.